Casa térrea belíssima com 3 dormitórios à venda na cidade de Carlópolis – PR
Vídeo da casa
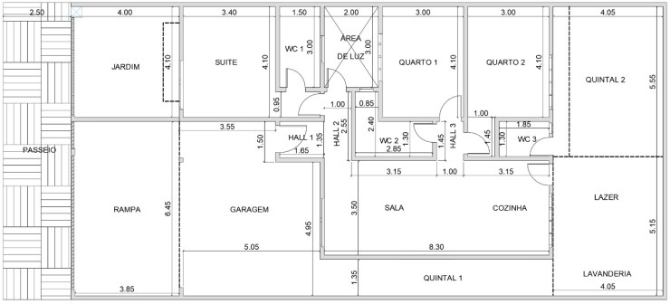
Planta e Vista da fachada
Maquete eletrônica
A casa:
Garagem para 3 carros (2 cobertas e 1 descoberta)
3 quartos e 3 banheiros (sendo 1 suíte)
Área de gourmet e lavanderia coberta
Sala e cozinha integrada
Hall de entrada
Área de Luz
Quintal
Jardim
ACOMPANHE A CONSTRUÇÃO DE SUA CASA DESDE A RAIZ! CLIQUE AQUI!
Detalhes:
Estrutura com verga e contraverga em todas as portas, janelas e vãos
Condutores extras para ampliar a rede elétrica / cabos de internet
Saída extra de água para ducha higiênica nos banheiros
Portas de madeira Sincol com soleiras de granito
Janelas e portas Blindex com soleiras de granito
Acabamento em gesso em todos os ambientes
Todas as tomadas são de 20 amperes
Lâmpadas Led em todos os cômodos
Lustres na garagem + lâmpadas Led
Paredes internas com massa corrida
Portão social com caixa de correio
Nichos embutidos nos banheiros
Spots no jardim+ lâmpadas Led
Portão basculante na garagem
Pisos internos em porcelanato
Pisos externos em cerâmica
Caixa d´água de 1.000 litros
Altura da laje 3,00 metros
Cumeeira em todo muro
Azulejos até o teto
Aparador de porta
Lixeira externa
Campainha
Habite-se
Projetos
Descrição: Sabe aquele lugar gostoso, longe da agitação, do barulho, congestionamento e poluição dos grandes centros? Onde você escuta o barulho dos pássaros e balançar das árvores? Aquele lugar arejado, com pouco movimento e que transpira tranquilidade? É tudo o que você vai encontrar nessa charmosinha casa no Residencial Amaral na cidade de Carlópolis no estado do Paraná!
São 165m² de puro charme! Com terreno de 242m² quartos amplos e 1 suíte espaçosa. Na cozinha, você encontrará muito espaço integrada com a uma sala ampla para poder receber à vontade amigos e familiares.
Gosta de jardim? Você encontrará um pátio externo para poder embelezar ainda mais esse lugar – já possui gramado. A área externa é imensa, o imóvel é novo e você será a primeira pessoa a morar nessa maravilhosa casa construída com muito carinho e pensada no melhor conforto para você e sua família!
E tudo isso sob um céu límpido onde verá perfeitamente o todas as estrelas formando aquele lindo rastro da Vialáctea no período da noite, podendo ver até estrelas cadentes e satélites, muito ar puro, águas cristalinas, belas paisagens, além de todo o conforto e bem-estar proporcionados pelo belo Residencial Amaral que é composto por mais 10 casas no mesmo estilo infraestrutura planejada, água, luz, esgoto e fibra ótica.

Mas, não se engane acreditando que sossego quer dizer isolamento. Você estará a apenas 12 minutos a pé da Ilha do Ponciano que é o centro de eventos da cidade, estará também próximo a escolas, mercados com entrega grátis a domicílio, pizzarias, lanchonetes, sorveterias, circuito para corrida e bicicleta, praia de água doce, píer para desembarque de barcos, e muito mais.
É importante lembrar que Carlópolis é uma cidade onde existem diversas opções de lazer, você poderá desfrutar tanto dos prazeres da praia como das delícias do campo, tais como passeios de barco, lancha, Jet skis, esportes náuticos, tranquilas praias e muita pesca.
Você encontrará qualidade de vida, segurança e aconchego em um dos mais famosos bairros da cidade.

O município de Carlópolis fica às margens da Represa da Usina Hidrelétrica de Chavantes, a 369 km de Curitiba e 380 km de São Paulo Capital, com área inundada de aproximadamente 116 km², fazendo limite com Estado de São Paulo na cidade de Fartura. A localização geográfica tem alguns fatores fundamentais para garantir o desenvolvimento diferenciado em relação à Carlópolis. Dentre eles, a beleza da paisagem, proporcionada pela represa, que aliada ao clima, exerce forte atração na região. O município recebe milhares de turistas e pescadores, devido à grande quantidade e diversidade de espécies na represa. Não deixe de conhecer!

Agende sua visita e veja de perto tudo o que esse oásis tem a oferecer. Horários para visita flexíveis. Só entrar em contato.
NÓS DA ENGENHARIA RAIZ TE ESPERAMOS!
Corretores de plantão:
ACOMPANHE A CONSTRUÇÃO DE SUA CASA DESDE A RAIZ! CLIQUE AQUI!








